Zum Inhalt springen
Dipl. Ing. Robert Gasser
INGENIEURKONSULENT FÜR BAUWESEN
Menü
Leistungen
Curriculum vitae
Stahl & Glas
Baugruben
Beton
Schwerlastbewegung
Behausungen
Gutachten
Design & Spielereien
Publikationen
Projekte
2016 – 2058
2011 – 2015
2006 – 2010
2001 – 2005
2000
1958 – 1999
Galerie
Rare Shots
Quotes for a Decent Life
Milieubedingte Unmutsäußerungen
Medienperlen
Links
Ingenieurwesen
Musik
Wissenschaft
Media & Politics
Reason & Humor
History & People
Fine Art
Helden / Heroes
Abschaum / Scum
Privat
Kontakt
2016 – 2058
2016 - 2058
»
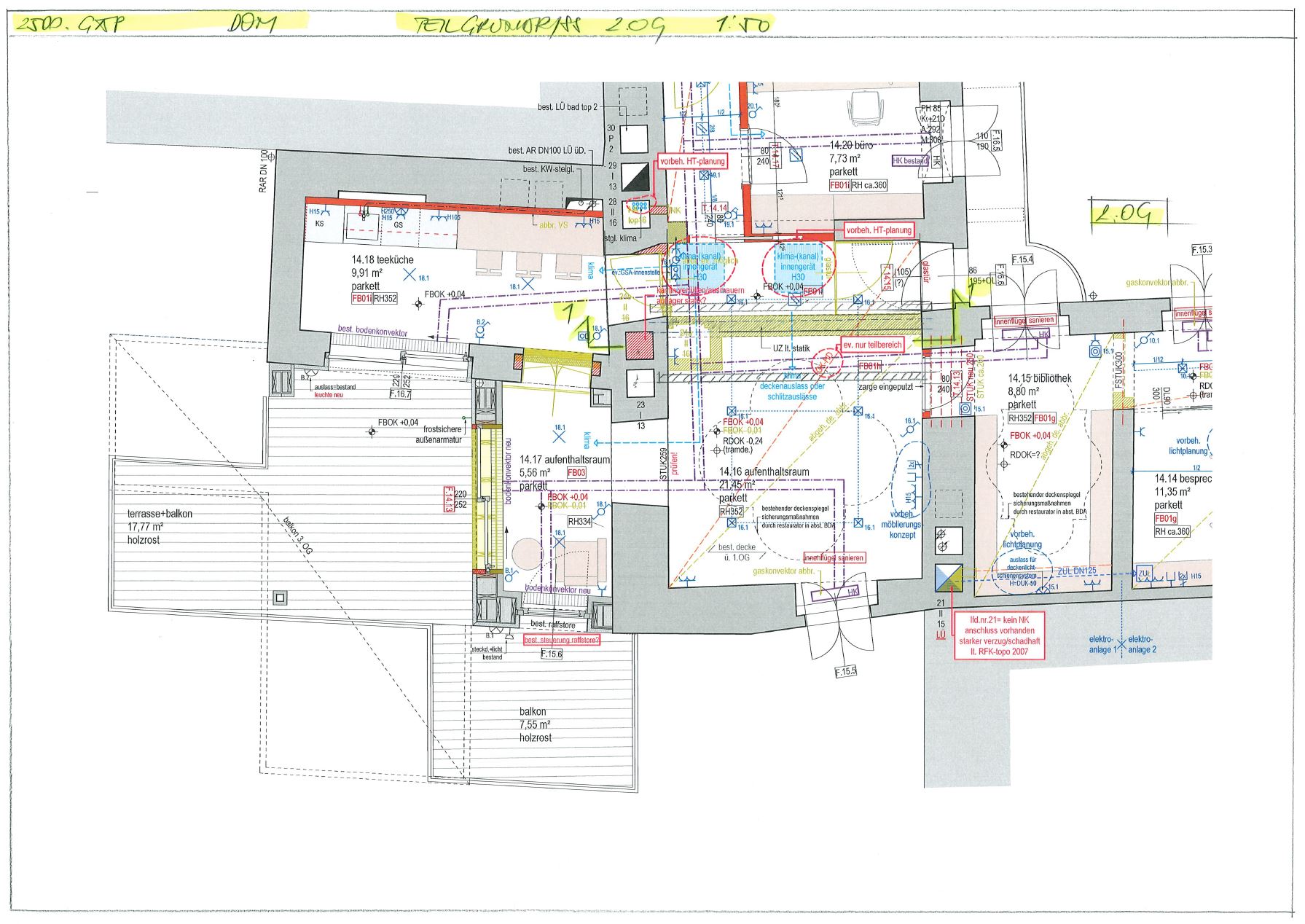
2516.dom Umbau 1010 Wien, Domgasse 6, 2.OG